Это комфортное ski-in/ski-out шале с 9 спальнями расположено на высоте 1530 метров прямо на лыжной трассе в главной лыжной зоне Ле-Же, Ле Шаван (Les Chavannes), рядом со всеми подъемниками. К террасе шале можно подъехать на лыжах по зеленым, красным и голубым трассам, которые пролегают через лес. Шале построено в 2011 году. Рядом с трассой расположен бар, лаунж-терраса и ресторан для ленчей, открытый для посещения в течение дня. Гости шале имеют эксклюзивное право пользоваться 2 небольшими приватными лаунжами с камином и телевизором. Шеф-повар предоставляет «гибкое» меню с выбором блюд на ужин. Интерьеры выполнены в современном стиле. Шесть спален из 9 обслуживаются лифтом, включая 5 главных спален. Некоторые спальни располагают балконами или террасами, 3 спальни имеют приватные наружные горячие купели. На верхнем уровне находится 3 спальни с индивидуальными лаунж-зонами. Во всех спальнях установлено телевидение «Freesat HD» и аудио-станции «BOSE». На основном уровне расположена спа-зона с сауной и массажной комнатой, а также доступом к наружной горячей купели. Для детей предусмотрена игровая комната, имеется игровая приставка Wii и стерилизатор детских бутылочек. Вечером игровую комнату можно использовать в качестве домашнего кинотеатра с HD проектором, экраном (92 дюйма) и аудиосистемой. Это шале отлично подходит для семейного отдыха с маленькими детьми и детьми старшего возраста. Отдыхать здесь можно на протяжении всего сезона.
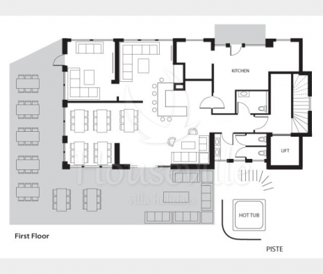
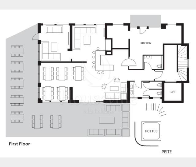
Планировка
- Спальня №1: двуспальная кровать, терраса с приватной горячей купелью, прилегающая ванная комната, отдельный душ, раковина и туалет. Можно установить детскую кроватку, двухъярусную кровать;
- Спальня №2: 2 односпальные кровати, прилегающая ванная комната с туалетом и раковиной, терраса с приватной горячей купелью. Можно установить детскую кроватку, двухъярусную кровать;
- Спальня №3: 2 односпальные кровати, балкон, прилегающий душ с туалетом и раковиной;
- Спальня №4: двуспальная кровать, балкон, прилегающая ванная комната с туалетом и раковиной. Можно установить детскую кроватку, двухъярусную кровать;
- Спальня №5: 2 односпальные кровати, прилегающая ванная комната с туалетом и раковиной. Можно установить детскую кроватку, двухъярусную кровать. Имеется балкон с приватной горячей купелью;
- Спальня №6: двуспальная кровать, балкон, прилегающая ванная комната с туалетом и раковиной. Можно установить детскую кроватку, двухъярусную кровать;
- Спальня №7: 2 односпальные кровати, место для детской кроватки, прилегающая ванная комната, туалет и раковина;
- Спальня №8: двуспальная кровать, место для детской кроватки, балкон, прилегающая ванная комната с туалетом и раковиной;
- Спальня №9: 2 односпальные кровати, место для детской кроватки/дополнительной односпальной кровати, балкон, прилегающая ванная комната, туалет и раковина.
