Это новое роскошное шале с 6 спальнями и дополнительным гостевым домиком на 4 гостя расположено в живописном курорте Ле-Же, (регион Порт-дю-Солей) всего в часе езды от Женевы. Это идеальное место для семейного отдыха и больших компаний друзей. Шале находится в нескольких минутах езды до подъемников и центра курорта, куда Вас отвезет личный автомобиль с водителем. В 6 спальнях (каждая с внутренней ванной комнатой) этой резиденции комфортно разместятся 12 гостей. Все комнаты оснащены ТВ и располагают прекрасным видом на долину. В ясный день из окон столовой и гостиной видна вершина Мон Блан. Рядом с входом в основное здание расположен небольшой гостевой домик, где смогут комфортно разместиться 4 гостя. Идеально подойдет для дополнительных гостей, нянь или подростков. Гости этой резиденции смогут расслабляться в сауне со стеклянными стенами, откуда открывается роскошный вид на 180 градусов или пить шампанское в уютной зоне отдыха или же смотреть на звезды из открытого джакузи на веранде. После отдыха в собственной спа зоне, гости будут приглашены в гостиную для того, чтобы отведать канапе и напитков, сервированных у большого рояля, ну а далее последует вкусный ужин, приготовленный личным поваром. Гостям предлагаются разнообразные и весьма оригинальные развлечения - как например горка от бара в винный погреб. Бильярдный стол легко превратиться в большой обеденный стол для особых случаев, вокруг которого смогут легко разместиться 22 персоны.
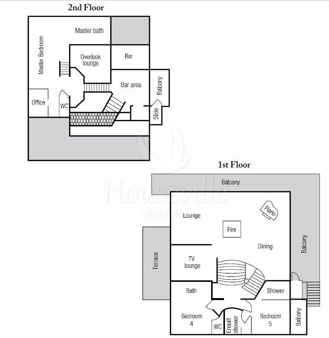
Планировка
- В Спальне №1 установлена двуспальная кровать, есть прилегающая ванная комната, телевизор и обращенная к югу терраса;
- Спальня №2 включает в себя 2 односпальные кровати/двуспальную кровать, прилегающую ванную комнату, телевизор и обращенную к югу террасу;
- Спальня №3: 2 односпальные кровати/двуспальная кровать, прилегающая душевая комната, телевизор;
- Спальня №4: двуспальная кровать, прилегающая ванная комната, телевизор;
- Спальня №5: 2 односпальные кровати/двуспальная кровать, прилегающая душевая комната, телевизор и приватный балкон;
- Спальня №6, главная: двуспальная кровать, прилегающая ванная комната и душ, рабочая зона, телевизор, обращенный на юг балкон;
- В гостевом домике: спальня с 2 односпальными/двуспальной кроватью, мягкий уголок с телевизором, мезонин с 2 односпальными кроватями, небольшая кухня.
- Детские кровати можно установить в Спальне №1, №3, №5 и №6.
