Это замечательное шале с 4 спальнями находится в небольшом приватном районе на залитом солнцем холме Ле Кре, который обращен к Вадь-д’Изеру. Очарование старого городка с каменными домами сочетается здесь с современным комфортом. Оригинальные элементы декора (отделанный камнем камин, дубовые полы и деревянная отделка) теперь дополнены современными удобствами. Так, современные стильные ванные комнаты отделаны мрамором, в гостиной установлены мягкие софы ручной работы, старинная мебель, в спальнях предусмотрены пуховые одеяла, а интерьеры украшены оригинальными предметами искусства. Шале располагает красивым камином, небольшим мезонином с кино-зоной и небольшим приватным кабинетом. Шале находится всего в 10 минутах ходьбы от центра курорта. Ежедневно гости могут воспользоваться услугами водителя, который доставит их до лыжных трасс и обратно (с 08:00 до 20:00).
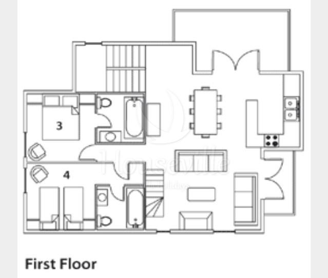
Планировка
- Спальня №1: 2 односпальные кровати, место для детской кроватки, балкон, прилегающая ванная комната с раковиной и туалетом;
- Спальня №2: двуспальная кровать, ограниченное место для детской кроватки, прилегающая душевая комната с раковиной и туалетом;
- Спальня №3: двуспальная кровать, прилегающая ванная комната с раковиной и туалетом;
- Спальня №4: 2 односпальные кровати, прилегающая ванная комната с раковиной и туалетом. На мезонине есть место для временного размещения дополнительной кровати.
