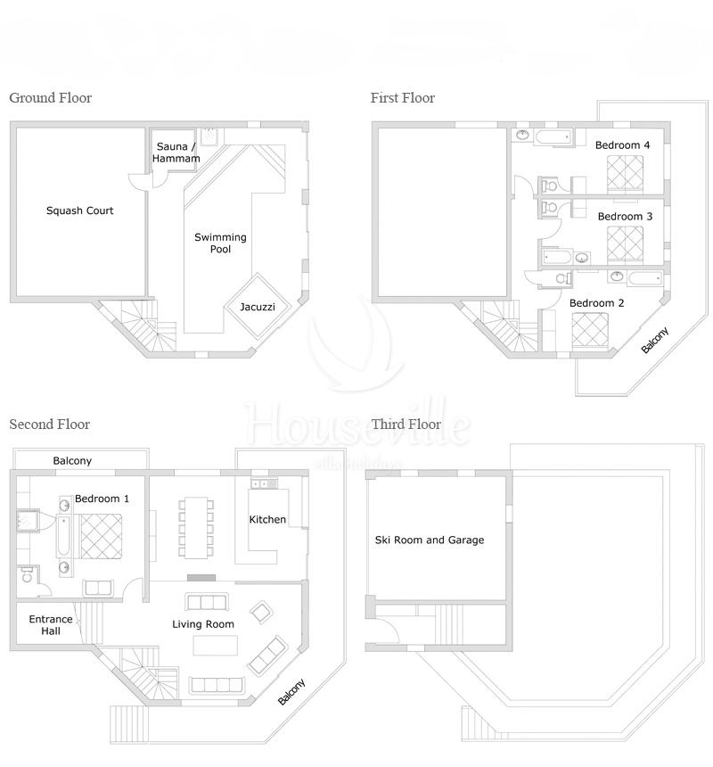
Это новое оригинальное шале с 4 спальнями красиво декорировано и может комфортно разместить до 8 гостей. Всё здесь сделано так, чтобы не только радовать глаз, но и дарить комфорт. Изначально задуманное как семейный дом, шале украшено уникальными архитектурными особенностями. В распоряжении гостей спа-зона с бассейном, кортом для сквоша, сауной и джакузи. По периметру спа-зоны установлены французские окна. Имеется большая гостиная открытой планировки со сводчатым потолком, обеденная и кухонная зона и расположенный по периметру балкон с красивыми видами на горы. Есть 4 спальни для 8 гостей: 1 главный сьют с большой кроватью, 1 спальня с двуспальной кроватью и 2 спальни с 2 односпальными кроватями/1 двуспальной кроватью. Во всех спальнях имеются балконы, ванные комнаты открытой планировки и отдельные туалеты. К услугам гостей персональный шеф-повар, менеджер шале и горничная. Персонал проживает отдельно. Шале находится в очаровательном городке Ле Праз (Куршевель 1300) с разнообразием хороших баров и ресторанов, несколькими отличными маршрутами для внетрассового катания и 2 мини-подъемниками, которые соединены с основной системой. Персональный консьерж организует питание и напитки по Вашему желанию, трансферы из аэропорта/в аэропорт, массаж и спа-процедуры в шале доставку лыжного снаряжения, уроки лыжной школы, услуги инструкторов и гидов по горам.
К шале можно вернуться на лыжах и воспользоваться услугами водителя, который может возить Вас по станциям Куршевеля и курорту Ле Праз.
Шале находится в 100-200 метрах от склона\подъемника и в 400-800 метрах от центра курорта (магазины, рестораны, пабы).
