Это чудесное шале с 6 спальнями, площадью 450 кв. м. рассчитано на 13-15 человек. Оно расположено в центре Межева, всего в 4 км от центра курорта. Аренда включает в себя использование спа и вертолетной площадкой. Гости смогут любоваться панорамой Монблана, Мон-д’Арбуа и Рошбрюн, вокруг расположены 9 гектаров полей. Возле здания предусмотрена посадочная площадка для вертолета – гости могут посмотреть Альпы, покататься в 3 разных странах или отправиться на шоппинг в Милан. DLA 0136 отлично подходит как для отдыха с семьей/друзьями, так и для медового месяца. Шале расположено недалеко от центра, но в то же время в тихой местности. Уже возле шале гости смогут стать на лыжи. После катания можно расслабиться в спа с хамамом, сауной, джакузи, а также насладиться массажем. Кроме того, можно организовать занятия йогой и пилатесом, спа-процедуры, спортивную терапию, терапию для релаксации или похудения.
Каждое утро с 07:30 до 10:30 сервируется завтрак, который включает в себя: чай на выбор, кофе (Nespresso или итальянский), свежевыжатый апельсиновый или грейпфрутовый сок, горячее или холодное шоколадное молоко, круассаны, хлеб с шоколадом, французский хлеб на выбор, фруктовый салат, кукурузные хлопья, мюсли, йогурт, местные сыры, салями, ветчина – все продукты местные или органического происхождения по возможности. Приватный шеф повар приготовит для Вас вкусные блюда, используя овощи из сада, где выращивают зелень, овощи и фрукты. Здесь растут тыквы, салат, томаты, клубника, редис, лук (+ лук-порей), а также кабачки. Зимой можно есть законсервированные овощи. Продукты органические и сертифицированные.
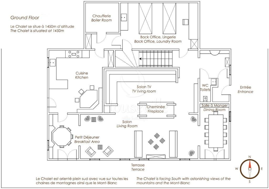
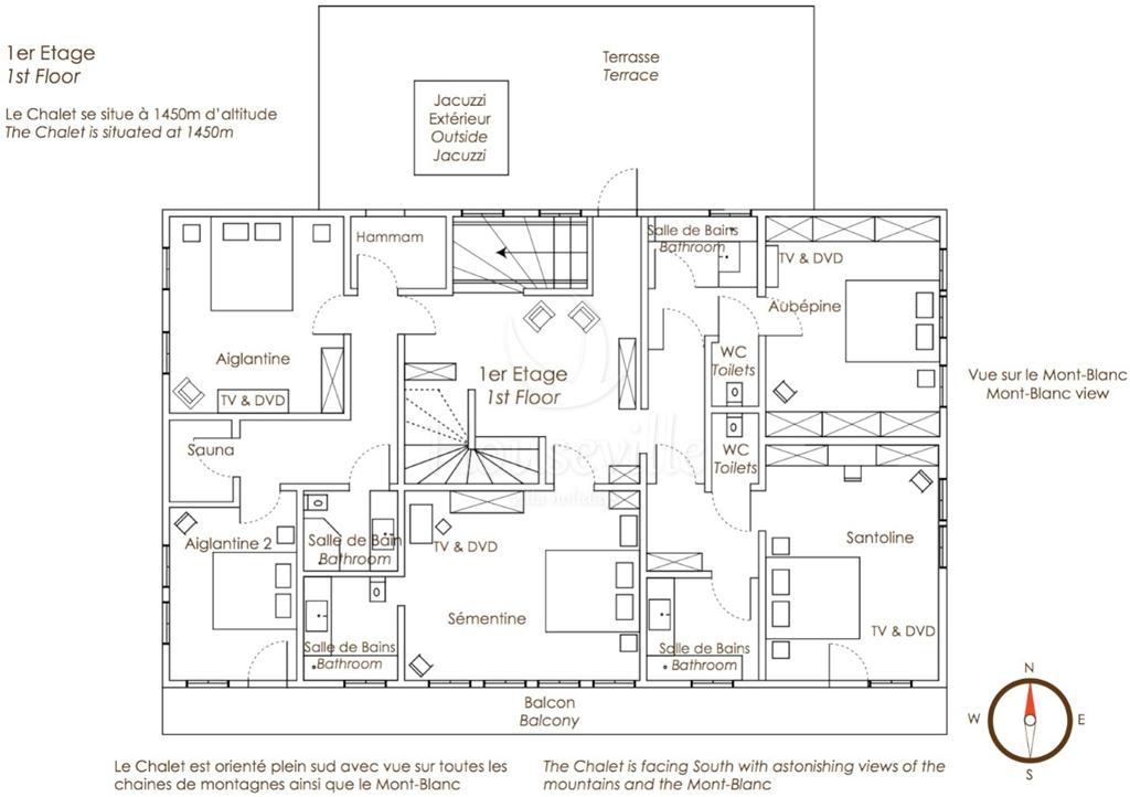
Планировка
- Имеется 6 спален (25 -70 кв. м), в которых может разместиться 13-15 человек. Спальни отделаны высококачественными материалами, дизайн сочетает в себе традиционные и современные элементы. Над оформлением работали талантливые дизайнеры. Во всех спальнях предусмотрено высококачественное постельное белье, матрасы и подушки (мягкие, с гусиными перьями);
- Основной уровень: холл с гостевыми туалетами, двойная гостиная с камином, столовая, зона для завтраков, полностью оборудованная кухня с обеденной зоной и прямым выходом на террасу, кабинет, прачечная (стиральная машина и сушилка), погреб, комната для снаряжения. Снаружи: вертолетная площадка;
- Второй уровень: 3 спальни с двуспальными кроватями, индивидуальными ванными комнатами, туалетом и балконом; 1 сьют со спальней с двуспальной кроватью и спальней с 2 односпальными кроватями, гардеробной, общей ванной комнатой, отдельными туалетами и балконом с красивыми видами. Этот уровень также включает в себя спа с хамамом, сауной и наружным джакузи;
- Третий уровень: 1 сьют с видом на сад, 1 спальней с двуспальной кроватью и отдельной детской спальней, ванной комнатой с гидромассажной ванной. Имеются отдельные туалеты и гардеробная;
- Гостиная на 12 персон с камином;
- Библиотека с 200 книгами, зеркальным ТВ, игровой приставкой Nitendo Wii и DVD проигрывателем;
- Спальня №1 - №2: двуспальная кровать, частичный вид на Монблан, вид на горы и поля, балкон, ванная комната, отдельный туалет, гардеробная;
- Спальня №3: двуспальная кровать, вид на горы и поля, балкон, ванная комната, туалет, кладовая;
- Спальня №4: сьют на втором уровне с 2 спальнями, в одной спальне установлена двуспальная кровать, во второй – 2 односпальные кровати. Вторая спальня располагает гардеробной, балконом с красивым видом, итальянским душем и туалетом;
- Спас с хамамом и сауной;
- Спальня №5 на третьем уровне: главная спальня с двуспальной кроватью и видом на сад, отдельная детская спальня, лаунж-зона, ванная комната (гидромассажная ванна), отдельные туалеты, гардеробная и кладовая.
