Это очаровательное ski-in шале с 5 спальнями (12 гостей) было полностью отреставрировано, но при этом не утратило своих оригинальных черт. Превосходный текстиль и мебель в сочетании со старинными предметами декора создают великолепные альпийские интерьеры. Шале расположено в Лехе, в районе Штубенбах, к нему можно подъехать на лыжах по трассе для оф-писта возле рынка, которая связана с лыжной зоной Rüfikoft. Здание занимает 3 уровня, в 5 просторных спальнях с прилегающими ванными комнатами может разместиться 12 человек. Главные сьюты располагают большими гардеробными/кабинетами и ванными комнатами с отдельно стоящими ваннами. На террасе, которая целый день залита солнцем, можно любоваться захватывающими видами. Аперитив Вам могут сервировать в традиционной зоне, отделанной камнем или винном погребе, а ужин подадут в красивой столовой, рассчитанной на 14 человек. После ужина можно отдохнуть в уютной гостиной или посмотреть фильм в кино-комнате. Вход находится на основном уровне, где имеется комната с сушилками для обуви, отдельный гостевой туалет и гостиная. В столовой установлен камин. Хорошо оборудованная кухня отделена от столовой, куда можно пройти из уютной гостиной. Кинозал в современном стиле, который отлично подходит для детских развлечений, соединен дверью с гостиной. Этот уровень также включает в себя спа-зону с био-сауной и релакс-зону, где можно насладиться массажем, любуясь солнцем, которое закатывается вечером за величественные горы Леха. На основном уровне имеется большая спальня с 1 двуспальной/2 односпальными кроватями, гардеробной зоной и прилегающей ванной комнатой. Из столовой лестница ведет в зону для карточных игр и уголок для чтения. Второй уровень вмещает в себя также главную спальню №1 с большой кроватью, отдельным лаунжем и прилегающей ванной комнатой (ванна и душ), главную спальню №2 с большой кроватью и прилегающей душевой комнатой, и спальню с двуспальной кроватью и прилегающим душем. К Спальне №4 прилегает детская комната с 4 односпальными кроватями. Вторая лестница ведет из столовой вниз, в винный погреб с комнатой для дегустации. На нижнем уровне также располагается прачечная и гараж (есть ограничения по высоте). Также доступны 2 парковочных места снаружи и 1 дополнительное место для автомобиля внутри здания. В шале предусмотрен как пакет «Делюкс», так и пакет «Классик».
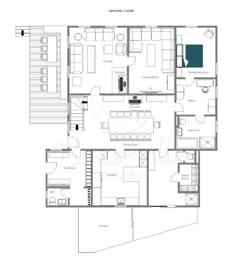
Планировка
- Основной уровень: винный погреб и комната для дегустации; прачечная зона; туалет для персонала; гараж для 1 автомобиля.
- Входной уровень: столовая на 14 посадочных мест, гостиная на 8 человек, кухня, спа (био-сауна и релакс-зона), спальня с 2 односпальными/двуспальной кроватью, гардеробной и прилегающей ванной комнатой; комната для ботинок и лыж, гостевой туалет.
- Второй уровень: главный сьют с большой кроватью, отдельной гостиной и прилегающей ванной комнатой» главный сьют№2 с большой кроватью и прилегающей душевой комнатой; детская спальня с 4 односпальными кроватями и прилегающей душевой комнатой; спальня с 2 односпальными кроватями и прилегающей душевой комнатой; прихожая/библиотечная зона.
