Эти симпатичные апартаменты с 5 спальнями занимают средний уровень шале, которое находится в пределах короткой прогулки от подъемной станции Нассерейн. Здание было построено в 2012 году и выполнено в соответствии с высочайшими стандартами качества. В отделке широко применялось дерево, а также несколько видов натурального камня. Интерьеры в тирольском стиле 18-го века обставлены стильной мебелью. Деревянный потолок в обеденной зоне украшен росписью в стиле эпохи Ренессанса. В 5 спальнях сможет комфортно разместиться 11 человек. Имеется лестница и лифт. Изо всех спален и гостиной зоны можно выйти на просторные солнечные балконы, обращенные на юг. Прекрасная гостиная и обеденная зона открытой планировки с традиционным камином в австрийском стиле расположены в западной части апартаментов. Хорошо оборудованная кухня открытой планировки обращена к столовой, обеденный стол рассчитан на 12 человек. Главная спальня с двуспальной кроватью располагает прилегающей ванной комнатой. В 2 спальнях можно установить 2 односпальные/двуспальную кровать. Спальня №4 располагает 2 односпальными кроватями и прилегающей душевой комнатой. В спальне №5 установлена двухъярусная кровать для взрослых и 1 односпальная кровать, имеется прилегающая ванная комната. Все спальни располагают балконами. В коридоре предусмотрен дополнительный туалет. Красиво обставленная ТВ-комната отлично подойдет для детских игр. Имеется также общая лыжная комната и комната для просушки обуви. Кроме того, гости имеют доступ к общему хамаму на нижнем уровне. Предусмотрена парковка для 2 автомобилей. Шале расположено в районе Нассерейн, всего в 3 минутах ходьбы от подъемников и в 8-10 минутах ходьбы от центра курорта. При хорошем снежном покрове возможен ski-out, а также ski-in для экспертов и лыжников среднего уровня подготовки.
Аренда предусматривает пакет «Делюкс» и «Классик». Пакет «Делюкс» включает в себя приготовление еды в главной кухонной зоне и сервировку в Ваших апартаментах. Обычно, пакет «Делюкс» включает в себя услуги общего водителя (08:30 – 01:00, ежедневно).
PRA 0143 находится в одном здании с апартаментами PRA 0154, PRA 0064, PRA 0067. При желании шале можно арендовать полностью (DLA 0103).
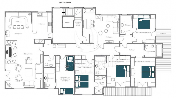
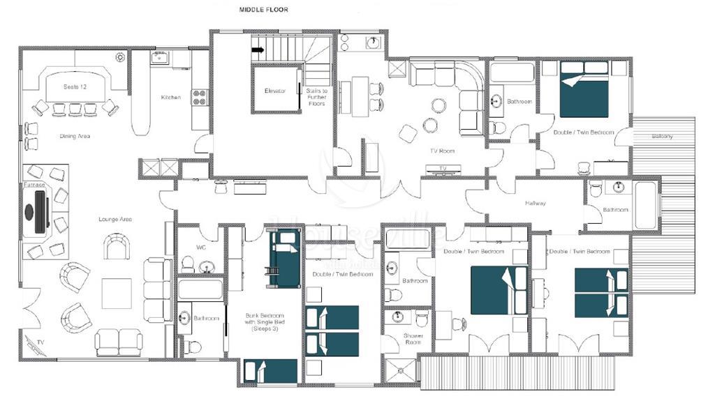
Планировка
Апартаменты занимают 1 (средний) уровень и включают в себя 1 главную спальню с двуспальной кроватью и прилегающей ванной комнатой, 2 спальни с 2 односпальными/двуспальной кроватью и прилегающими ванными комнатами, 1 спальню с 2 односпальными кроватями и прилегающей душевой комнатой, 1 спальню с двухъярусной кроватью и 1 односпальной кроватью, к спальне прилегает ванная комната. Имеется отдельный туалет. Есть кухня, столовая и гостиная.
