Это великолепное шале с 4 спальнями занимает прекрасное месторасположение в Вербье возле лыжного подъемника Savoleyres. Отдельно стоящее здание располагает потрясающим видом на горный массив Пети и Гран Комбен и курорт сверху. Оно было недавно достроено и занимает 2 уровня. Здесь с комфортом может расположиться до 10 гостей. Шале обслуживается профессиональным персоналом, включая шеф-повара. Возле шале каждые 10 минут курсирует бесплатный автобус, который отвезет Вас к подъемнику Медран, Carrefour, L'Hameau и Savoleyres.
Планировка:
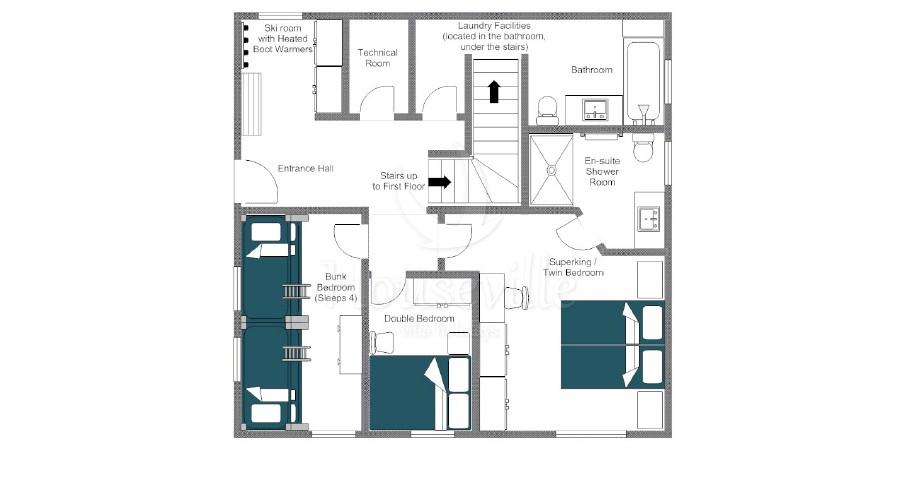
- Гости заходят в шале и попадают на нижний уровень. Здесь находится вместительная комната для снаряжения с сушилками для обуви и 3 спальни: большая спальня №1 с двуспальной кроватью и прилегающей душевой комнатой, красивая спальня №2 с двуспальной кроватью, оформленная в альпийском стиле и уютная спальня №3 с двухъярусной кроватью, прекрасно подходящая для детей. На уровне также имеется большая ванная комната.
- Верхний уровень включает в себя гостиную, обеденную зону, главную спальню, рабочую зону и душевую комнату с гостевой уборной. Сидя у камина в гостиной открытой планировки, Вы сможете любоваться беспрепятственным видом на спуски Вербье. Обеденная зона отделена от кухни барной стойкой. Есть выход на широкий балкон с гамаком и наружной софой. В главной спальне имеется телевизор, к ней прилегает ванная комната. На мезонине предусмотрена еще одна спальня с двуспальной кроватью.
В шале:
- Площадь: 160 кв. м;
- 4 спальни, для 8+2 гостей;
- 4 ванные комнаты;
- Гостиная для 8 человек;
- Обеденная зона на 10 персон;
- Телевизор Apple, DVD/CD-проигрыватель, система Hi-Fi, MP3-плеер;
- Wi-Fi;
- Терраса, обращенная на юг;
- Камин (дрова);
- Детская кроватка, высокий стульчик для кормления ребенка;
- Прачечная;
- Приватная комната для снаряжения с сушилками для обуви.
Расстояния:
- Savoleyres – 1 минута езды;
- Carrefour – 1 минута езды;
- Медран – 5 минут езды;
- Центральная площадь – 3 минуты езды.
